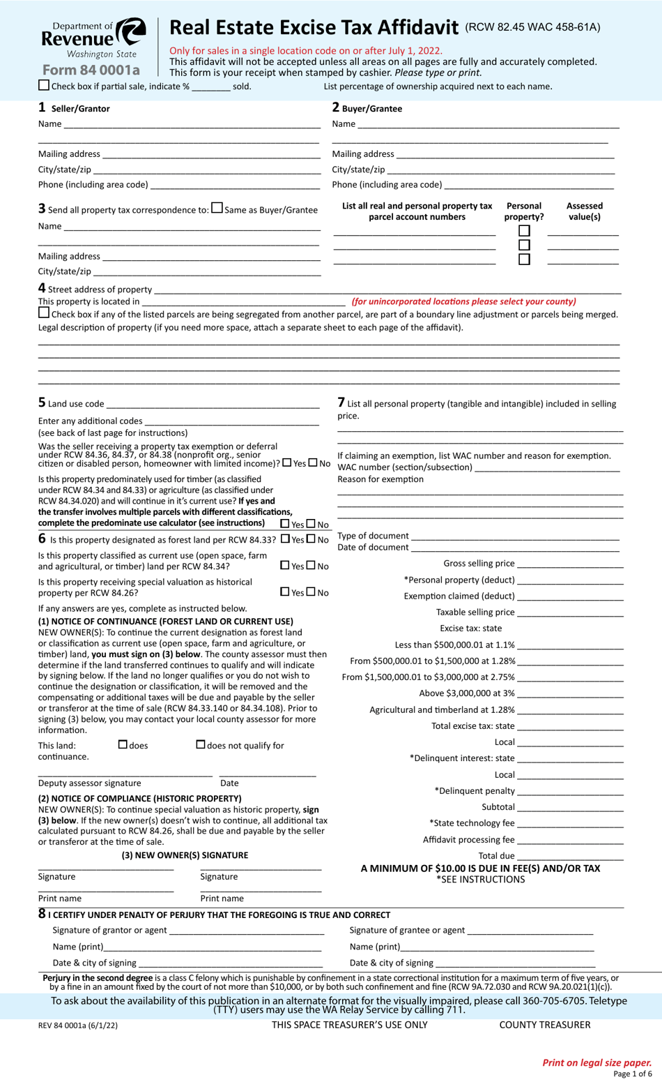
Real Estate Excise Tax Affidavit Washington State King County . you are required to complete a mobile home excise tax affidavit to document the sale and pay excise tax on the sale price. real estate excise tax forms. To report a transfer of a controlling interest in real property, please use the real estate excise tax affidavit. Review the below options carefully to select the correct form for the date of sale. for tax assistance, contact your local county treasurer/recorder or visit dor.wa.gov/reet. the transfer of a used mobile home will be subject to the real estate excise tax (chapter 82.45 rcw) on the following transactions:. To ask about the availability of this. a real estate excise tax affidavit must be completed and signed by all parties involved in a real property conveyance. the transfer of used mobile home will subject to the real estate excise tax (chapter 82.45 rcw) on the following transactions:.
        
        from www.pdffiller.com 
     
        
        real estate excise tax forms. a real estate excise tax affidavit must be completed and signed by all parties involved in a real property conveyance. the transfer of a used mobile home will be subject to the real estate excise tax (chapter 82.45 rcw) on the following transactions:. for tax assistance, contact your local county treasurer/recorder or visit dor.wa.gov/reet. To report a transfer of a controlling interest in real property, please use the real estate excise tax affidavit. the transfer of used mobile home will subject to the real estate excise tax (chapter 82.45 rcw) on the following transactions:. Review the below options carefully to select the correct form for the date of sale. you are required to complete a mobile home excise tax affidavit to document the sale and pay excise tax on the sale price. To ask about the availability of this.
    
    	
            
	
		 
         
    Fillable Online REAL ESTATE EXCISE TAX AFFIDAVIT RETURN FORM 84 0001B 
    Real Estate Excise Tax Affidavit Washington State King County  Review the below options carefully to select the correct form for the date of sale. you are required to complete a mobile home excise tax affidavit to document the sale and pay excise tax on the sale price. To report a transfer of a controlling interest in real property, please use the real estate excise tax affidavit. To ask about the availability of this. the transfer of used mobile home will subject to the real estate excise tax (chapter 82.45 rcw) on the following transactions:. real estate excise tax forms. a real estate excise tax affidavit must be completed and signed by all parties involved in a real property conveyance. Review the below options carefully to select the correct form for the date of sale. for tax assistance, contact your local county treasurer/recorder or visit dor.wa.gov/reet. the transfer of a used mobile home will be subject to the real estate excise tax (chapter 82.45 rcw) on the following transactions:.
            
	
		 
         
 
    
        From www.templateroller.com 
                    Form REV84 0003E Download Fillable PDF or Fill Online Mobile Home Real Real Estate Excise Tax Affidavit Washington State King County  Review the below options carefully to select the correct form for the date of sale. To report a transfer of a controlling interest in real property, please use the real estate excise tax affidavit. real estate excise tax forms. To ask about the availability of this. a real estate excise tax affidavit must be completed and signed by. Real Estate Excise Tax Affidavit Washington State King County.
     
    
        From www.printableaffidavitform.com 
                    King County Real Estate Excise Tax Affidavit Form 2024 Real Estate Excise Tax Affidavit Washington State King County  for tax assistance, contact your local county treasurer/recorder or visit dor.wa.gov/reet. real estate excise tax forms. Review the below options carefully to select the correct form for the date of sale. you are required to complete a mobile home excise tax affidavit to document the sale and pay excise tax on the sale price. a real. Real Estate Excise Tax Affidavit Washington State King County.
     
    
        From www.templateroller.com 
                    Form REV84 0003E Download Fillable PDF or Fill Online Mobile Home Real Real Estate Excise Tax Affidavit Washington State King County  a real estate excise tax affidavit must be completed and signed by all parties involved in a real property conveyance. To report a transfer of a controlling interest in real property, please use the real estate excise tax affidavit. the transfer of used mobile home will subject to the real estate excise tax (chapter 82.45 rcw) on the. Real Estate Excise Tax Affidavit Washington State King County.
     
    
        From www.printableaffidavitform.com 
                    King County Real Estate Excise Tax Affidavit Form 2024 Real Estate Excise Tax Affidavit Washington State King County  To report a transfer of a controlling interest in real property, please use the real estate excise tax affidavit. the transfer of used mobile home will subject to the real estate excise tax (chapter 82.45 rcw) on the following transactions:. a real estate excise tax affidavit must be completed and signed by all parties involved in a real. Real Estate Excise Tax Affidavit Washington State King County.
     
    
        From printableformsfree.com 
                    Real Estate Excise Tax Affidavit Pierce County Fillable Form Real Estate Excise Tax Affidavit Washington State King County  the transfer of used mobile home will subject to the real estate excise tax (chapter 82.45 rcw) on the following transactions:. To report a transfer of a controlling interest in real property, please use the real estate excise tax affidavit. Review the below options carefully to select the correct form for the date of sale. for tax assistance,. Real Estate Excise Tax Affidavit Washington State King County.
     
    
        From trellis.law 
                    AFFIRMATION/AFFIDAVIT OF SERVICE DOE A/K/A COURTNEY WALKERAFFIDAVIT Real Estate Excise Tax Affidavit Washington State King County  the transfer of used mobile home will subject to the real estate excise tax (chapter 82.45 rcw) on the following transactions:. To ask about the availability of this. for tax assistance, contact your local county treasurer/recorder or visit dor.wa.gov/reet. Review the below options carefully to select the correct form for the date of sale. To report a transfer. Real Estate Excise Tax Affidavit Washington State King County.
     
    
        From www.templateroller.com 
                    Form REV84 0001A Download Printable PDF or Fill Online Real Estate Real Estate Excise Tax Affidavit Washington State King County  for tax assistance, contact your local county treasurer/recorder or visit dor.wa.gov/reet. To ask about the availability of this. the transfer of used mobile home will subject to the real estate excise tax (chapter 82.45 rcw) on the following transactions:. a real estate excise tax affidavit must be completed and signed by all parties involved in a real. Real Estate Excise Tax Affidavit Washington State King County.
     
    
        From www.pdffiller.com 
                    Fillable Online Real Estate Excise Tax Affidavit Wa Fax Email Print Real Estate Excise Tax Affidavit Washington State King County  To ask about the availability of this. the transfer of used mobile home will subject to the real estate excise tax (chapter 82.45 rcw) on the following transactions:. real estate excise tax forms. To report a transfer of a controlling interest in real property, please use the real estate excise tax affidavit. Review the below options carefully to. Real Estate Excise Tax Affidavit Washington State King County.
     
    
        From www.templateroller.com 
                    Form REV84 0002EA Download Fillable PDF or Fill Online Real Estate Real Estate Excise Tax Affidavit Washington State King County  you are required to complete a mobile home excise tax affidavit to document the sale and pay excise tax on the sale price. To ask about the availability of this. Review the below options carefully to select the correct form for the date of sale. To report a transfer of a controlling interest in real property, please use the. Real Estate Excise Tax Affidavit Washington State King County.
     
    
        From www.templateroller.com 
                    Form REV84 0001A Download Fillable PDF or Fill Online Real Estate Real Estate Excise Tax Affidavit Washington State King County  To ask about the availability of this. the transfer of a used mobile home will be subject to the real estate excise tax (chapter 82.45 rcw) on the following transactions:. the transfer of used mobile home will subject to the real estate excise tax (chapter 82.45 rcw) on the following transactions:. Review the below options carefully to select. Real Estate Excise Tax Affidavit Washington State King County.
     
    
        From www.pdffiller.com 
                    Fillable Online REAL ESTATE EXCISE TAX AFFIDAVIT RETURN FORM 84 0001B Real Estate Excise Tax Affidavit Washington State King County  for tax assistance, contact your local county treasurer/recorder or visit dor.wa.gov/reet. real estate excise tax forms. the transfer of a used mobile home will be subject to the real estate excise tax (chapter 82.45 rcw) on the following transactions:. the transfer of used mobile home will subject to the real estate excise tax (chapter 82.45 rcw). Real Estate Excise Tax Affidavit Washington State King County.
     
    
        From www.printableaffidavitform.com 
                    King County Excise Tax Affidavit Form 2024 Real Estate Excise Tax Affidavit Washington State King County  for tax assistance, contact your local county treasurer/recorder or visit dor.wa.gov/reet. Review the below options carefully to select the correct form for the date of sale. you are required to complete a mobile home excise tax affidavit to document the sale and pay excise tax on the sale price. To report a transfer of a controlling interest in. Real Estate Excise Tax Affidavit Washington State King County.
     
    
        From www.king5.com 
                    State House committee passes bill to allow for the increase of real Real Estate Excise Tax Affidavit Washington State King County  for tax assistance, contact your local county treasurer/recorder or visit dor.wa.gov/reet. the transfer of used mobile home will subject to the real estate excise tax (chapter 82.45 rcw) on the following transactions:. To report a transfer of a controlling interest in real property, please use the real estate excise tax affidavit. real estate excise tax forms. Web. Real Estate Excise Tax Affidavit Washington State King County.
     
    
        From www.printableaffidavitform.com 
                    King County Excise Tax Affidavit Form 2024 Real Estate Excise Tax Affidavit Washington State King County  the transfer of used mobile home will subject to the real estate excise tax (chapter 82.45 rcw) on the following transactions:. To report a transfer of a controlling interest in real property, please use the real estate excise tax affidavit. the transfer of a used mobile home will be subject to the real estate excise tax (chapter 82.45. Real Estate Excise Tax Affidavit Washington State King County.
     
    
        From www.pdffiller.com 
                    Fillable Online dor wa Real Estate Excise Tax Affidavit Washington Real Estate Excise Tax Affidavit Washington State King County  a real estate excise tax affidavit must be completed and signed by all parties involved in a real property conveyance. you are required to complete a mobile home excise tax affidavit to document the sale and pay excise tax on the sale price. real estate excise tax forms. for tax assistance, contact your local county treasurer/recorder. Real Estate Excise Tax Affidavit Washington State King County.
     
    
        From www.pdffiller.com 
                    2020 Form WA DoR MultiPurpose Combined Excise Tax Return Fill Online Real Estate Excise Tax Affidavit Washington State King County  To report a transfer of a controlling interest in real property, please use the real estate excise tax affidavit. you are required to complete a mobile home excise tax affidavit to document the sale and pay excise tax on the sale price. a real estate excise tax affidavit must be completed and signed by all parties involved in. Real Estate Excise Tax Affidavit Washington State King County.
     
    
        From www.accesshomeclosing.com 
                    Changes updated for real estate excise tax calculations Real Estate Excise Tax Affidavit Washington State King County  To report a transfer of a controlling interest in real property, please use the real estate excise tax affidavit. To ask about the availability of this. Review the below options carefully to select the correct form for the date of sale. you are required to complete a mobile home excise tax affidavit to document the sale and pay excise. Real Estate Excise Tax Affidavit Washington State King County.
     
    
        From www.getgomezhomes.com 
                    NEW Real Estate Excise Tax Rates Beginning in 2020 Real Estate Excise Tax Affidavit Washington State King County  a real estate excise tax affidavit must be completed and signed by all parties involved in a real property conveyance. the transfer of used mobile home will subject to the real estate excise tax (chapter 82.45 rcw) on the following transactions:. Review the below options carefully to select the correct form for the date of sale. you. Real Estate Excise Tax Affidavit Washington State King County.